Rif: IMMO-124082791
					
              
                           
              
              ROMA
ROMA - zona Pigneto
                      	
              
            	
                        
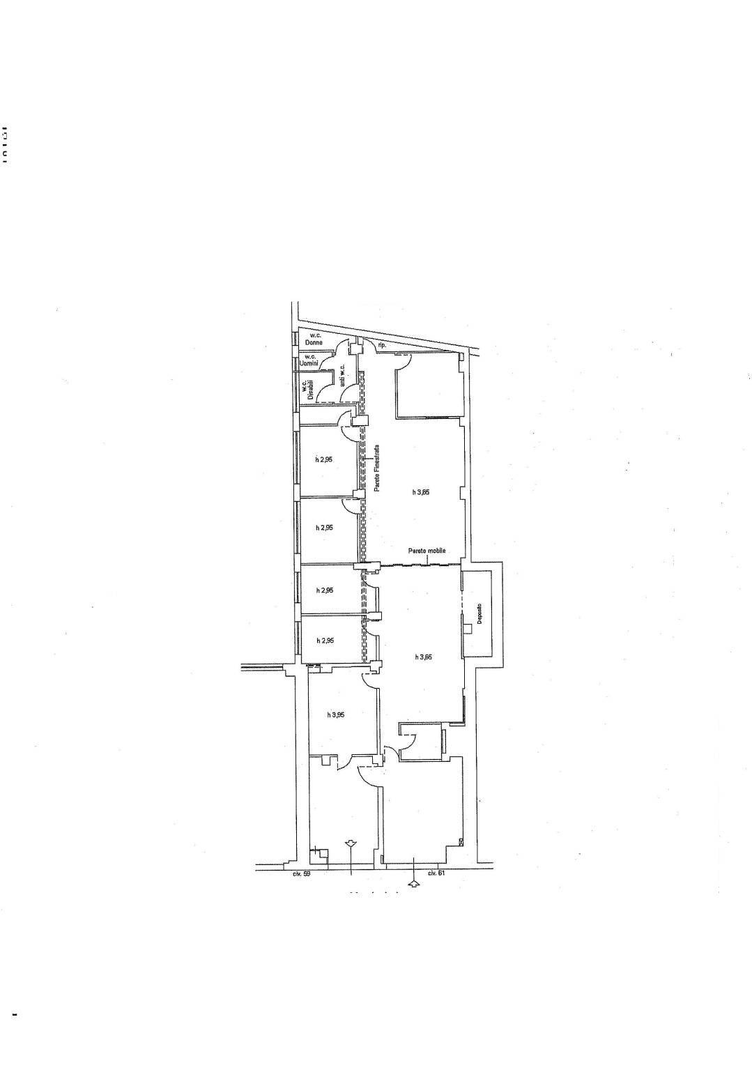
              CASILINA - VIA GIOVANNI MAGGI, AFFITTASI LOCALE DI AMPIA METRATURA, ATTUALMENTE ADIBITO A CENTRO ESTETICO, MA IL LOCALE E' PROVVISTO DI CANNA FUMARIA, CON DUE VETRINE SU STRADA, COMPOSTO DA INGRESSO-RECEPTION, SEI STANZE PRIVATE, TRE BAGNI DI CUI UNO PER DISABILI, UN GRANDE SALONE CHE SI PUO' DIVIDERE IN DUE SALE, IN OTTIME CONDIZIONI INTERNE ESSENDO STATO RISTRUTTURATO RECENTEMENTE. ESSENDO LA PROPRIETA' UN SOGGETTO IVA, ANCHE IL CANONE SARA' ASSOGGETTATO AL REGIME DELL'IVA.
						  Consistenze
| Descrizione | Superficie | Sup. comm. | 
|---|---|---|
| Principali | ||
| Negozio - piano terra | 284 Mq | 284 Mqc | 
| Totale | 284 Mqc | |

 
										 
                             
                             
                             
                             
                             
                             
                             
                             
                             
                             
                             
                             
                             
                             
                             
                            




